勃裕雙電源 創造品牌影響力
勃裕電氣致力于優良的電子產品研發、生產與銷售

產品詳情
產品概述
BYGL系列隔離開關,適用于交流50Hz、交流額定電壓690V及以下、直流額定電壓440V及以下,額定電流至3150A。
在工業企業配電設備中,可供不頻繁手動接通和分斷電路及隔離電源用,中125A~630A可作為頻繁接通和分斷。
符合標準:GB14048.3、IEC60947-3。
產品型號及其含義

正常工作條件及安裝條件
周圍空氣溫度不高于+40℃,不低于-5℃。
安裝地點的海拔不超過2000m。
濕度:
當溫度為+40℃時,空氣的相對濕度不超過50?在較低的溫度下可以允許有較高的相對濕度,例如20℃時達90?對由于溫度變化偶爾產生的凝露應采取特殊的措施。
周圍環境的污染等級為3級。
開關應安裝在無顯著握動、沖擊振動和沒有雨雪侵襲的地方,同時安裝地點應無爆炸危險介質,且介質中無足以腐蝕金屬和破壞絕緣的氣體和塵埃。
主要參數及技術性能
BYGL-315-3150A電器性能與機械性能

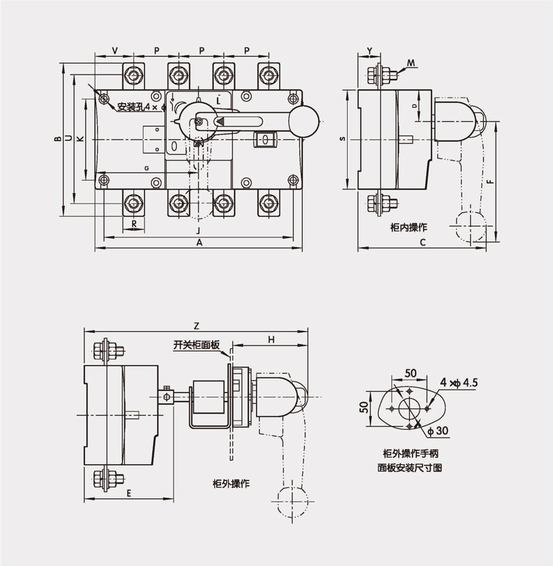
安裝方式
安裝方式如圈示,柜外操作需加裝長軸,要求裝在面(門)板上的手柄(軸)和長軸同軸(對準)。否則,柜門不易開閉及操作費力,并導致操作機構損壞。按照產品至門板的安裝距離、并加上軸伸入手柄的長(約30毫米)確定軸的長度。

BYGL-125A~630A隔離開關外形與安裝尺寸


?2019 上海勃裕電氣有限公司 版權所有?? 滬ICP備14015965號-1